PLANSET OVERVIEW

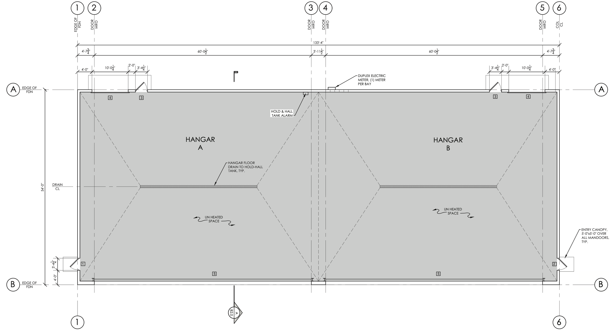
HANGAR FLOOR PLAN _ A -B

HANGAR FLOOR PLAN

PLANSET OVERVIEW - ELEVATIONS

  • Amenities

    • 60 x 16' Hydraulic swing door

    • Separate individual utilities & meters

    • Natural gas line stubbed into hangar

    • Sewer line & drain stubbed into hangar

    • Water meter and line stubbed into hangar

    • Vehicle roll up door 8' high / 10' wide

    • 2- Personal doors 40" wide

    • Fuel: Jet A deliverable to hangar

    • Fuel: 100LL self serve only at FBO

  • Building Details

    Hangars will be white CMU block construction. 3400sf. Dimensions ~ 65’4” wide 51’6” Deep. 60 x 16' Hydraulic swing Higher Power door. Door and trim will be finished in satin black. Roof will be black EPDM rubber. Driveways & taxiway ramp will be Asphalt / Macadam. Apron ~ 480' wide x 54' deep. ~30' wide pavement to taxiway

    Additional customization and buildout possible. Please inquire to discuss possibilities

  • Construction & timeline

    Currently, the building site: UUU-1 has been cleared of all major topography, Stormwater has begun. Building plans and engineering have been completed, soil hazard & perc testing has been completed. 7460-1 has been submitted. Construction access gate & construction office in place. Final groundwork is in progress. Permits have been issued.

    The project is ready to go.

Fitment possibilities

SINGLE UNIT: With a single hangar unit interior space of ~ 65’4” x 51’6” and 60’ x 16’6” door you can store a whole lot of aircraft.

DOUBLE UNIT: With a clearspan double door hangar building with interior space of ~ 132’ x 51’6” and two 60’ x 16’6” doors the possibilities are almost endless.

See some example fitments below. Please reach out to us with your goals and we can assess your fitment plans using precision 3D modeling to determine fitment possibilities for your application.

GET IN TOUCH

AIRCRAFT FITMENT